Case accesibile

Modulhouse — Case modulare de nouă generație
Suntem o companie de construcții și inginerie care proiectează și produce case modulare complete, conforme cu toate standardele europene de calitate, siguranță și eficiență energetică.

Structură solidă, nu cabane provizorii
Spre deosebire de cabanele din lemn sau constructii provizorii, casele Modulhouse sunt constructii trainice, realizate pe un cadru metalic robust, umplut cu beton celular usor, monolitic, ce asigura:

durabilitate structurală,

izolare termică și fonică excelentă,

protecție împotriva dăunătorilor, umezelii și focului.

 

Ca un LEGO pentru viață

Fiecare casă este formată din 4–6 module industriale, complet echipate, care se montează pe teren în doar 2–5 zile. Un sistem modern, rapid și sigur — exact ca un „constructor” pentru locuința ta permanentă.

Unde ne aflăm

Producția Modulhouse se află în România, în orașul Arad.
În curând, vom deschide și un al doilea centru de producție în București, pentru a termene și mai rapid de livrare în toată țara și în afara ei.

Livrare oriunde in Europa

Livrăm casele noastre în orice țară europeană.
Transportul nu este inclus în prețul casei, însă calculăm separat costul livrării și vă oferiți cea mai avantajoasă opțiune logistică, în funcție de locația proiectului dvs.
Ne ocupăm și de descărcare și poziționare la fața locului, dacă este necesar.

Garanții pentru cumpărare

Pentru a vă oferi liniște și încredere deplină, Modulhouse oferă:

  • Garanție structurală de 30 de ani pentru cadrul metalic al casei;
  • 5 ani garanție pentru finisaje și instalații (electrică, termică și sanitară);
  • Control de calitate în toate etapele, cu fotografii și rapoarte de progres;
  • Plată în 3 tranșe - fără avans integral, plătiți pe măsură ce avansăm cu lucrările;
  • Contract clar, fără costuri ascunse, totul transparent de la început.

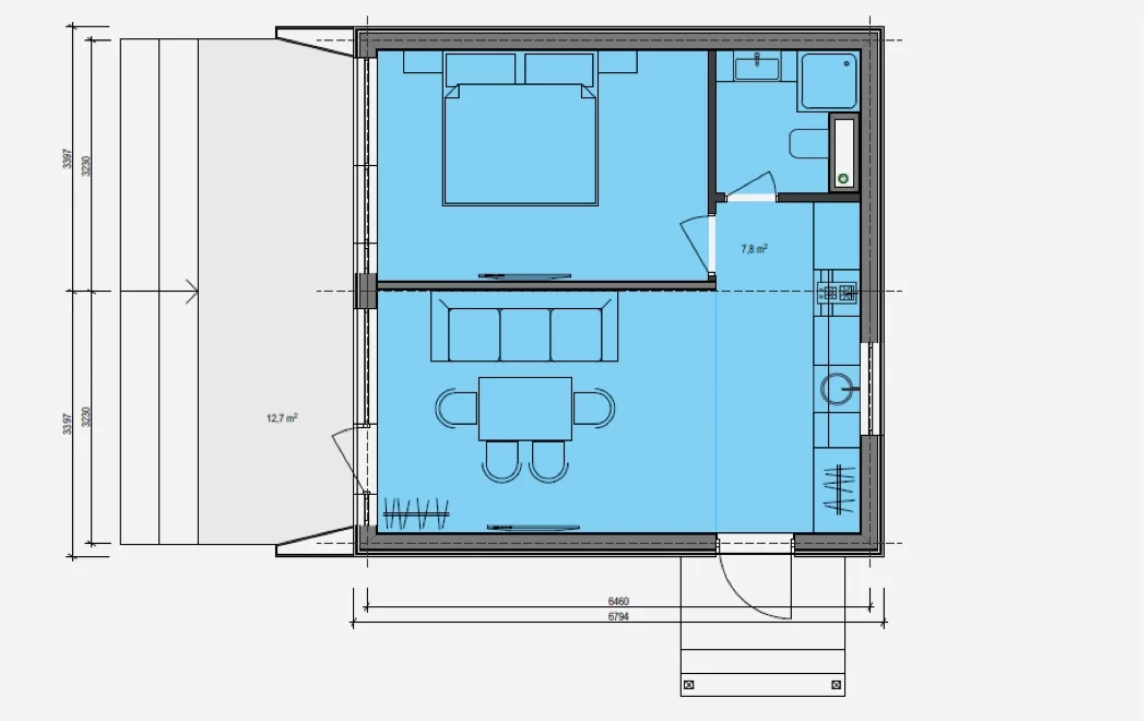
Ce oferim Case complete cu suprafața între 50 și 120 m²

Devizul este stabilit din start. Totul transparent. Fără costuri ascunse.

1–3 dormitoare

Living spațios cu bucătărie  Băi, camere tehnice, terase  Plan personalizat pentru fiecare client

Sistem modular inginerește proiectat

Cadru metalic + beton celular Rezistență și siguranță la incendiu Izolație termică și fonică (U ≤ 0.25 W/m²K) Rezistență seismică Durată de viață: peste 50 de ani

Asamblare pe teren în 2–5 zile

Livrare module gata fabricate Montaj complet Livrare oriunde în Europa

Timp de producție: între 60 și 90 de zile

Calendar clar Control riguros al calității în fiecare etapă

Condiții de plată

Plată în etape:

Avans la semnarea contractului A doua tranșă la finalizarea structurii Plată finală înainte de livrare

De ce Modulhouse?

Casa Compactă Gata de locuit

Garanția Modulhouse: contractul este asigurat, iar fondurile dumneavoastră sunt protejate de compania de asigurări.

750 € pe metru pătrat la cheie

Din ce este construită casa Modulhouse

Structura pereților exteriori – 300 mm

  • Fațadă: plăci flexibile rezistente la impact, cu adeziv (≈ 3–5 mm)

  • Placaj exterior rezistent la umiditate: 15 mm

  • Termoizolație: polistiren expandat/grafitat – 100 mm

  • Structură portantă: profil metalic 150 mm (grosime perete 1,5 mm), umplut cu beton ușor modificat pentru rezistență și izolație suplimentară

  • Placaj interior: 12 mm

  • Finisaj interior: gips-carton 12,5 mm

Grosime totală: aprox. 300 mm

  • Geamuri tripan, culoare gri antracit
  • Finisaj exterior – plăci ceramice flexibile, rezistente la umezeală, radiații solare și intemperii.

Panouri și finisaje interioare:

  • Plăci structurale rezistente la umezeală de 12 mm.

  • Gips-carton tratat împotriva umidității, pregătit pentru finisaj.

  • Pereți și tavane vopsite în tonuri neutre, deschise.


Sisteme inginerești (deja instalate)

  • Apă: conductele sunt montate și conectate la punctele de consum.

  • Electricitate și iluminat: cablaj ascuns, întrerupătoare, prize, panou de siguranțe.

  • Încălzire: prin pardoseală sau radiatoare (în funcție de proiect).

  • Ventilație: sistem de evacuare în băi și toalete.


Baie și toaletă (complet echipate)

  • Pereți placați cu faianță.

  • Echipamente instalate: cadă/duș, toaletă, lavoar, baterii și robinete.

  • Ventilație și aerisire.

  • Totul conectat și gata de utilizare.


Interior

  • Pardoseală: parchet laminat sau PAL rezistent la umezeală și abraziune.

  • Uși de interior cu toată feroneria inclusă.

  • Plinte și pante montate cu atenție, asortate cu interiorul.

Ce nu este inclus în preț

  • Transportul casei – se calculează separat, în funcție de numărul de kilometri până la locație.

  • Lucrările de fundație – execuția fundației nu este inclusă în prețul casei și se realizează separat.

👉 Toate costurile suplimentare se stabilesc transparent înainte de semnarea contractului.

Rezultat final: primiți o casă complet finisată “la cheie” – cu toate utilitățile, baie echipată, finisaje interioare și rețele conectate.
Vă mutați și locuiți imediat – fără lucrări ascunse și fără costuri suplimentare.

Casa Urbană Spațiu optim, cost redus

Garanția Modulhouse: contractul este asigurat, iar fondurile dumneavoastră sunt protejate de compania de asigurări.

700 € pe metru pătrat la cheie

Din ce este construită casa Modulhouse

Structura pereților exteriori – 300 mm

  • Fațadă: plăci flexibile rezistente la impact, cu adeziv (≈ 3–5 mm)

  • Placaj exterior rezistent la umiditate: 15 mm

  • Termoizolație: polistiren expandat/grafitat – 100 mm

  • Structură portantă: profil metalic 150 mm (grosime perete 1,5 mm), umplut cu beton ușor modificat pentru rezistență și izolație suplimentară

  • Placaj interior: 12 mm

  • Finisaj interior: gips-carton 12,5 mm

Grosime totală: aprox. 300 mm

  • Geamuri tripan, culoare gri antracit
  • Finisaj exterior – plăci ceramice flexibile, rezistente la umezeală, radiații solare și intemperii.

Panouri și finisaje interioare:

  • Plăci structurale rezistente la umezeală de 12 mm.

  • Gips-carton tratat împotriva umidității, pregătit pentru finisaj.

  • Pereți și tavane vopsite în tonuri neutre, deschise.


Sisteme inginerești (deja instalate)

  • Apă: conductele sunt montate și conectate la punctele de consum.

  • Electricitate și iluminat: cablaj ascuns, întrerupătoare, prize, panou de siguranțe.

  • Încălzire: prin pardoseală sau radiatoare (în funcție de proiect).

  • Ventilație: sistem de evacuare în băi și toalete.


Baie și toaletă (complet echipate)

  • Pereți placați cu faianță.

  • Echipamente instalate: cadă/duș, toaletă, lavoar, baterii și robinete.

  • Ventilație și aerisire.

  • Totul conectat și gata de utilizare.


Interior

  • Pardoseală: parchet laminat sau PAL rezistent la umezeală și abraziune.

  • Uși de interior cu toată feroneria inclusă.

  • Plinte și pante montate cu atenție, asortate cu interiorul.

Ce nu este inclus în preț

  • Transportul casei – se calculează separat, în funcție de numărul de kilometri până la locație.

  • Lucrările de fundație – execuția fundației nu este inclusă în prețul casei și se realizează separat.

👉 Toate costurile suplimentare se stabilesc transparent înainte de semnarea contractului.

Rezultat final: primiți o casă complet finisată “la cheie” – cu toate utilitățile, baie echipată, finisaje interioare și rețele conectate.
Vă mutați și locuiți imediat – fără lucrări ascunse și fără costuri suplimentare.

Casa Smart Tot ce ai nevoie

Garanția Modulhouse: contractul este asigurat, iar fondurile dumneavoastră sunt protejate de compania de asigurări.

750 € pe metru pătrat la cheie

Din ce este construită casa Modulhouse

Structura pereților exteriori – 300 mm

  • Fațadă: plăci flexibile rezistente la impact, cu adeziv (≈ 3–5 mm)

  • Placaj exterior rezistent la umiditate: 15 mm

  • Termoizolație: polistiren expandat/grafitat – 100 mm

  • Structură portantă: profil metalic 150 mm (grosime perete 1,5 mm), umplut cu beton ușor modificat pentru rezistență și izolație suplimentară

  • Placaj interior: 12 mm

  • Finisaj interior: gips-carton 12,5 mm

Grosime totală: aprox. 300 mm

  • Geamuri tripan, culoare gri antracit
  • Finisaj exterior – plăci ceramice flexibile, rezistente la umezeală, radiații solare și intemperii.

Panouri și finisaje interioare:

  • Plăci structurale rezistente la umezeală de 12 mm.

  • Gips-carton tratat împotriva umidității, pregătit pentru finisaj.

  • Pereți și tavane vopsite în tonuri neutre, deschise.


Sisteme inginerești (deja instalate)

  • Apă: conductele sunt montate și conectate la punctele de consum.

  • Electricitate și iluminat: cablaj ascuns, întrerupătoare, prize, panou de siguranțe.

  • Încălzire: prin pardoseală sau radiatoare (în funcție de proiect).

  • Ventilație: sistem de evacuare în băi și toalete.


Baie și toaletă (complet echipate)

  • Pereți placați cu faianță.

  • Echipamente instalate: cadă/duș, toaletă, lavoar, baterii și robinete.

  • Ventilație și aerisire.

  • Totul conectat și gata de utilizare.


Interior

  • Pardoseală: parchet laminat sau PAL rezistent la umezeală și abraziune.

  • Uși de interior cu toată feroneria inclusă.

  • Plinte și pante montate cu atenție, asortate cu interiorul.

Ce nu este inclus în preț

  • Transportul casei – se calculează separat, în funcție de numărul de kilometri până la locație.

  • Lucrările de fundație – execuția fundației nu este inclusă în prețul casei și se realizează separat.

👉 Toate costurile suplimentare se stabilesc transparent înainte de semnarea contractului.

Rezultat final: primiți o casă complet finisată “la cheie” – cu toate utilitățile, baie echipată, finisaje interioare și rețele conectate.
Vă mutați și locuiți imediat – fără lucrări ascunse și fără costuri suplimentare.

Casa pentru un nou început

Garanția Modulhouse: contractul este asigurat, iar fondurile dumneavoastră sunt protejate de compania de asigurări.

700 € pe metru pătrat la cheie

Din ce este construită casa Modulhouse

Structura pereților exteriori – 300 mm

  • Fațadă: plăci flexibile rezistente la impact, cu adeziv (≈ 3–5 mm)

  • Placaj exterior rezistent la umiditate: 15 mm

  • Termoizolație: polistiren expandat/grafitat – 100 mm

  • Structură portantă: profil metalic 150 mm (grosime perete 1,5 mm), umplut cu beton ușor modificat pentru rezistență și izolație suplimentară

  • Placaj interior: 12 mm

  • Finisaj interior: gips-carton 12,5 mm

Grosime totală: aprox. 300 mm

  • Geamuri tripan, culoare gri antracit
  • Finisaj exterior – plăci ceramice flexibile, rezistente la umezeală, radiații solare și intemperii.

Panouri și finisaje interioare:

  • Plăci structurale rezistente la umezeală de 12 mm.

  • Gips-carton tratat împotriva umidității, pregătit pentru finisaj.

  • Pereți și tavane vopsite în tonuri neutre, deschise.


Sisteme inginerești (deja instalate)

  • Apă: conductele sunt montate și conectate la punctele de consum.

  • Electricitate și iluminat: cablaj ascuns, întrerupătoare, prize, panou de siguranțe.

  • Încălzire: prin pardoseală sau radiatoare (în funcție de proiect).

  • Ventilație: sistem de evacuare în băi și toalete.


Baie și toaletă (complet echipate)

  • Pereți placați cu faianță.

  • Echipamente instalate: cadă/duș, toaletă, lavoar, baterii și robinete.

  • Ventilație și aerisire.

  • Totul conectat și gata de utilizare.


Interior

  • Pardoseală: parchet laminat sau PAL rezistent la umezeală și abraziune.

  • Uși de interior cu toată feroneria inclusă.

  • Plinte și pante montate cu atenție, asortate cu interiorul.

Ce nu este inclus în preț

  • Transportul casei – se calculează separat, în funcție de numărul de kilometri până la locație.

  • Lucrările de fundație – execuția fundației nu este inclusă în prețul casei și se realizează separat.

👉 Toate costurile suplimentare se stabilesc transparent înainte de semnarea contractului.

Rezultat final: primiți o casă complet finisată “la cheie” – cu toate utilitățile, baie echipată, finisaje interioare și rețele conectate.
Vă mutați și locuiți imediat – fără lucrări ascunse și fără costuri suplimentare.

Casa Familială Mai mult spațiu, același preț

Garanția Modulhouse: contractul este asigurat, iar fondurile dumneavoastră sunt protejate de compania de asigurări.

700 € pe metru pătrat la cheie

Din ce este construită casa Modulhouse

Structura pereților exteriori – 300 mm

  • Fațadă: plăci flexibile rezistente la impact, cu adeziv (≈ 3–5 mm)

  • Placaj exterior rezistent la umiditate: 15 mm

  • Termoizolație: polistiren expandat/grafitat – 100 mm

  • Structură portantă: profil metalic 150 mm (grosime perete 1,5 mm), umplut cu beton ușor modificat pentru rezistență și izolație suplimentară

  • Placaj interior: 12 mm

  • Finisaj interior: gips-carton 12,5 mm

Grosime totală: aprox. 300 mm

  • Geamuri tripan, culoare gri antracit
  • Finisaj exterior – plăci ceramice flexibile, rezistente la umezeală, radiații solare și intemperii.

Panouri și finisaje interioare:

  • Plăci structurale rezistente la umezeală de 12 mm.

  • Gips-carton tratat împotriva umidității, pregătit pentru finisaj.

  • Pereți și tavane vopsite în tonuri neutre, deschise.


Sisteme inginerești (deja instalate)

  • Apă: conductele sunt montate și conectate la punctele de consum.

  • Electricitate și iluminat: cablaj ascuns, întrerupătoare, prize, panou de siguranțe.

  • Încălzire: prin pardoseală sau radiatoare (în funcție de proiect).

  • Ventilație: sistem de evacuare în băi și toalete.


Baie și toaletă (complet echipate)

  • Pereți placați cu faianță.

  • Echipamente instalate: cadă/duș, toaletă, lavoar, baterii și robinete.

  • Ventilație și aerisire.

  • Totul conectat și gata de utilizare.


Interior

  • Pardoseală: parchet laminat sau PAL rezistent la umezeală și abraziune.

  • Uși de interior cu toată feroneria inclusă.

  • Plinte și pante montate cu atenție, asortate cu interiorul.

Ce nu este inclus în preț

  • Transportul casei – se calculează separat, în funcție de numărul de kilometri până la locație.

  • Lucrările de fundație – execuția fundației nu este inclusă în prețul casei și se realizează separat.

👉 Toate costurile suplimentare se stabilesc transparent înainte de semnarea contractului.

Rezultat final: primiți o casă complet finisată “la cheie” – cu toate utilitățile, baie echipată, finisaje interioare și rețele conectate.
Vă mutați și locuiți imediat – fără lucrări ascunse și fără costuri suplimentare.

Casa Modulară XL Eficiență și confort

Garanția Modulhouse: contractul este asigurat, iar fondurile dumneavoastră sunt protejate de compania de asigurări.

840 € pe metru pătrat la cheie

Din ce este construită casa Modulhouse

Structura pereților exteriori – 300 mm

  • Fațadă: plăci flexibile rezistente la impact, cu adeziv (≈ 3–5 mm)

  • Placaj exterior rezistent la umiditate: 15 mm

  • Termoizolație: polistiren expandat/grafitat – 100 mm

  • Structură portantă: profil metalic 150 mm (grosime perete 1,5 mm), umplut cu beton ușor modificat pentru rezistență și izolație suplimentară

  • Placaj interior: 12 mm

  • Finisaj interior: gips-carton 12,5 mm

Grosime totală: aprox. 300 mm

  • Geamuri tripan, culoare gri antracit
  • Finisaj exterior – plăci ceramice flexibile, rezistente la umezeală, radiații solare și intemperii.

Panouri și finisaje interioare:

  • Plăci structurale rezistente la umezeală de 12 mm.

  • Gips-carton tratat împotriva umidității, pregătit pentru finisaj.

  • Pereți și tavane vopsite în tonuri neutre, deschise.


Sisteme inginerești (deja instalate)

  • Apă: conductele sunt montate și conectate la punctele de consum.

  • Electricitate și iluminat: cablaj ascuns, întrerupătoare, prize, panou de siguranțe.

  • Încălzire: prin pardoseală sau radiatoare (în funcție de proiect).

  • Ventilație: sistem de evacuare în băi și toalete.


Baie și toaletă (complet echipate)

  • Pereți placați cu faianță.

  • Echipamente instalate: cadă/duș, toaletă, lavoar, baterii și robinete.

  • Ventilație și aerisire.

  • Totul conectat și gata de utilizare.


Interior

  • Pardoseală: parchet laminat sau PAL rezistent la umezeală și abraziune.

  • Uși de interior cu toată feroneria inclusă.

  • Plinte și pante montate cu atenție, asortate cu interiorul.

Ce nu este inclus în preț

  • Transportul casei – se calculează separat, în funcție de numărul de kilometri până la locație.

  • Lucrările de fundație – execuția fundației nu este inclusă în prețul casei și se realizează separat.

👉 Toate costurile suplimentare se stabilesc transparent înainte de semnarea contractului.

Rezultat final: primiți o casă complet finisată “la cheie” – cu toate utilitățile, baie echipată, finisaje interioare și rețele conectate.
Vă mutați și locuiți imediat – fără lucrări ascunse și fără costuri suplimentare.

Casa Modulară XLL Eficiență și confort

Garanția Modulhouse: contractul este asigurat, iar fondurile dumneavoastră sunt protejate de compania de asigurări.

840 € pe metru pătrat la cheie

Din ce este construită casa Modulhouse

Structura pereților exteriori – 300 mm

  • Fațadă: plăci flexibile rezistente la impact, cu adeziv (≈ 3–5 mm)

  • Placaj exterior rezistent la umiditate: 15 mm

  • Termoizolație: polistiren expandat/grafitat – 100 mm

  • Structură portantă: profil metalic 150 mm (grosime perete 1,5 mm), umplut cu beton ușor modificat pentru rezistență și izolație suplimentară

  • Placaj interior: 12 mm

  • Finisaj interior: gips-carton 12,5 mm

Grosime totală: aprox. 300 mm

  • Geamuri tripan, culoare gri antracit
  • Finisaj exterior – plăci ceramice flexibile, rezistente la umezeală, radiații solare și intemperii.

Panouri și finisaje interioare:

  • Plăci structurale rezistente la umezeală de 12 mm.

  • Gips-carton tratat împotriva umidității, pregătit pentru finisaj.

  • Pereți și tavane vopsite în tonuri neutre, deschise.


Sisteme inginerești (deja instalate)

  • Apă: conductele sunt montate și conectate la punctele de consum.

  • Electricitate și iluminat: cablaj ascuns, întrerupătoare, prize, panou de siguranțe.

  • Încălzire: prin pardoseală sau radiatoare (în funcție de proiect).

  • Ventilație: sistem de evacuare în băi și toalete.


Baie și toaletă (complet echipate)

  • Pereți placați cu faianță.

  • Echipamente instalate: cadă/duș, toaletă, lavoar, baterii și robinete.

  • Ventilație și aerisire.

  • Totul conectat și gata de utilizare.


Interior

  • Pardoseală: parchet laminat sau PAL rezistent la umezeală și abraziune.

  • Uși de interior cu toată feroneria inclusă.

  • Plinte și pante montate cu atenție, asortate cu interiorul.

Ce nu este inclus în preț

  • Transportul casei – se calculează separat, în funcție de numărul de kilometri până la locație.

  • Lucrările de fundație – execuția fundației nu este inclusă în prețul casei și se realizează separat.

👉 Toate costurile suplimentare se stabilesc transparent înainte de semnarea contractului.

Rezultat final: primiți o casă complet finisată “la cheie” – cu toate utilitățile, baie echipată, finisaje interioare și rețele conectate.
Vă mutați și locuiți imediat – fără lucrări ascunse și fără costuri suplimentare.

  • WhatsApp
  • Telegram
  • Phone
  • Mail
× Send